The Wide House

Горизонтальный дом в Сочи, где архитектура и сад образуют единую систему. Каждое помещение открывается в свой собственный фрагмент ландшафта, создавая непрерывную последовательность пространств, растений и света.
Обзор
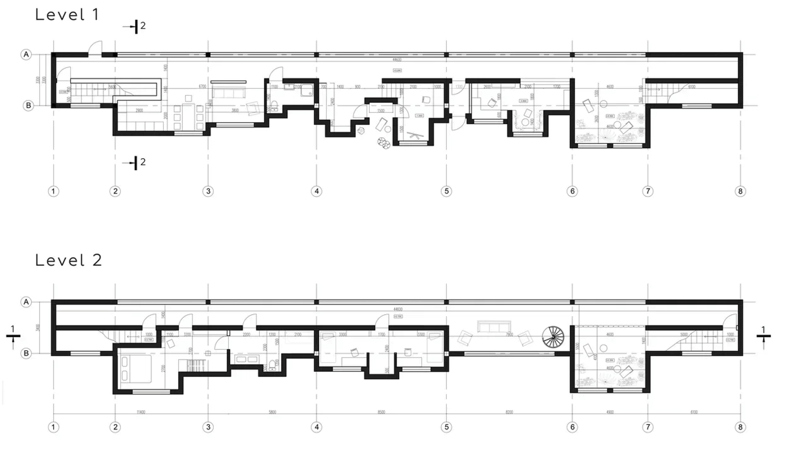
The Wide House — это дом для молодой семьи в Сочи, который расширяется горизонтально, объединяя архитектуру и сад в единую систему. Каждый интерьер обращён к своему собственному фрагменту ландшафта — нише, террасе или обрамлённому виду — создавая особую связь между пространством, светом и природой.
Проект основан не на одной композиционной оси, а на логике отношений: каждое помещение взаимодействует с садом по-разному. Это формирует ритм фасадов и террасированную топографию вокруг дома.
Совместно с клиентом был сформирован отдельный бюджет на ландшафт, чтобы сад стал не дополнением, а полноценным продолжением архитектуры. Так возникает «широкий» дом — типология, в которой ежедневные ритуалы разворачиваются на фоне непрерывного поля комнат, растений и света.
Данные проекта
Локация: Россия
Город: Сочи
Площадь: 300 м²
Статус: Концепт
Программа: Жилой дом
Задача
Создать компактный, но протяжённый дом, в котором каждый интерьер имеет прямую связь с природой; организовать ландшафт как пространственное продолжение архитектуры; разработать уникальный ритм фасадов без повторяющихся модулей.

Дом, где архитектура и сад становятся одним пространством.
Решение
Мы разложили функциональную программу в горизонталь, позволив каждому помещению «владеть» своим собственным фрагментом сада. Фасады и планировка формируются из этих отношений, а террасированный ландшафт связывает комнаты в единое поле. Результат — дом, который живёт вместе с природой.

Результат
Единая архитектурно-ландшафтная композиция, создающая светлые интерьеры, приватные садовые комнаты, плавную циркуляцию и характерный «широкий» силуэт дома.


